$925,000
4410 Westminster Place
St Louis, MO, 63108
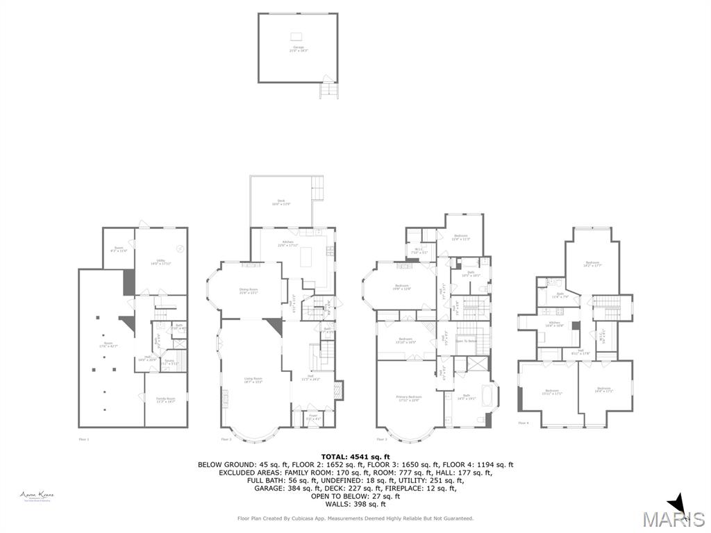
Step inside your dream home in the heart of the Central West End! This rare stone-front Victorian, complete with its own turret, sits on a quiet private street in historic Fullerton’s Westminster Place. Designed in 1893 by architect Alfred F. Rosenheim for attorney Albert Arnstein, this 6-bedroom, 5-bath treasure combines timeless craftsmanship with modern luxury. You’ll fall in love with the five all working fireplaces, the breathtaking original tiger wood staircase, stained glass windows, detailed millwork, and gleaming hardwood floors. The chef’s kitchen wows with a quartz waterfall island, Bertazzoni gas range, and stainless steel Cafe appliances. Upstairs, the primary suite is pure comfort—heated bedroom and bath floors, a cozy fireplace, walk-in closet, soaking tub, walk-in shower, double vanity, and even a private laundry. The third floor—with its own entrance—can serve as a guest suite, in-law apartment, or has been used before as a rental. Enjoy two laundry areas, a 2-car detached garage, a wraparound deck, and a peaceful backyard retreat. The home’s award-winning front door even appeared in Doors of St. Louis. This is where St. Louis history meets 2026 living—don’t miss your chance to make it yours. Call today to schedule your private viewing.
Property Details
Price:
$925,000
MLS #:
MIS26014599
Status:
Pending
Beds:
6
Baths:
5
Type:
Single Family
Subtype:
Single Family Residence
Subdivision:
Fullertons Westminster Place
Neighborhood:
4centralwest
Listed Date:
Apr 2, 2026
Finished Sq Ft:
6,104
Lot Size:
8,699 sqft / 0.20 acres (approx)
Year Built:
1893
Schools
School District:
St. Louis City
Elementary School:
Hickey Elem.
Middle School:
Yeatman-Liddell Middle School
High School:
Sumner High
Interior
Above Grade Finished Area
4474
Appliances
Stainless Steel Appliance(s), Dishwasher, Microwave, Gas Range, Refrigerator, Water Heater
Bathrooms
4 Full Bathrooms, 1 Half Bathroom
Below Grade Finished Area
1630
Cooling
Ceiling Fan(s), Central Air
Fireplaces Total
5
Flooring
Carpet, Ceramic Tile, Tile, Wood
Heating
Natural Gas, Heat Pump
Interior Features
Built-in Features, Ceiling Fan(s), Chandelier, Crown Molding, Custom Cabinetry, Double Vanity, Eat-in Kitchen, Entrance Foyer, High Ceilings, Historic Millwork, In-Law Floorplan, Kitchen Island, Natural Woodwork, Recessed Lighting, Sauna, Separate Dining, Separate Shower, Soaking Tub, Special Millwork, Storage, Tub, Walk-In Closet(s)
Laundry Features
2nd Floor, In Basement
Levels
Three Or More
Exterior
Architectural Style
Historic, Manse
Association Amenities
None
Construction Materials
Brick, Brick Veneer, Stone, Stone Veneer
Exterior Features
Private Yard
Fencing
Back Yard, Gate, Privacy
Garage Spaces
2
Lot Features
Back Yard, Front Yard, Landscaped
Parking Features
Alley Access, Detached, Garage, Garage Faces Rear
Parking Spots
2
Parking Total
2
Patio And Porch Features
Covered, Deck, Patio, Rear Porch, Wrap Around
Window Features
Blinds, Stained Glass
Financial
HOA Fee
$175
HOA Fee Frequency
Annually
HOA Includes
Common Area Maintenance
HOA Name
Fullertons Westminster Place
Tax Year
2024
Taxes
$11,674
Kahn & Busk Real Estate Partners have earned the top team spot at Coldwell Banker Premier Group for several years in a row! We are dedicated to helping our clients with all of their residential real estate needs. Whether you are a first time buyer or looking to downsize, we can help you with buying your next home and selling your current house. We have over 25 years of experience in the real estate industry in Eureka, St. Louis and surrounding areas.
More About JoshMortgage Calculator
Map
Current real estate data for Single Family in St Louis as of Apr 18, 2026
1,789
Single Family Listed
62
Avg DOM
151
Avg $ / SqFt
$285,930
Avg List Price
Community
- Address4410 Westminster Place St Louis MO
- SubdivisionFullertons Westminster Place
- CitySt Louis
- CountySt Louis City
- Zip Code63108
Similar Listings Nearby
Property Summary
- Located in the Fullertons Westminster Place subdivision, 4410 Westminster Place St Louis MO is a Single Family for sale in St Louis, MO, 63108. It is listed for $925,000 and features 6 beds, 5 baths, and has approximately 6,104 square feet of living space, and was originally constructed in 1893. The current price per square foot is $152. The average price per square foot for Single Family listings in St Louis is $151. The average listing price for Single Family in St Louis is $285,930.

Copyright 2026. All rights reserved.
4410 Westminster Place
St Louis, MO



















































































